Beschrijving

-Nu aantrekkelijk geprijsd- 
Ruime en sfeervolle twee-onder-een-kapwoning met verrassend veel leefruimte en een diepe achtertuin, gelegen in het hart van Made. Supermarkt, sportschool en huisarts bevinden zich in de directe omgeving, waardoor alle dagelijkse voorzieningen binnen handbereik zijn. De levensloopbestendige woning beschikt over een gemoderniseerde keuken, twee badkamers, een royale aanbouw, een eigen oprit en een circa 17 meter diepe achtertuin op het noordwesten – een plek waar comfort en woonplezier samenkomen.

Indeling

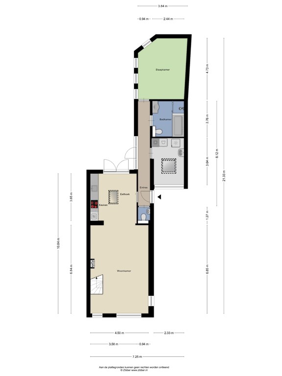
Via de zij-ingang betreed je de woning en kom je in de hal / entree. Vanuit hier zijn de toilet, keuken, woonkamer, bijkeuken, badkamer, en slaapkamer / werkkamer te bereiken.
Via de moderne schuifdeur met glas betreed je de keuken. De woonkamer bevindt zich aan de voorzijde van de woning en is erg licht door de grote raampartijen. In de woonkamer bevindt zich de meterkast en via de open trap is de eerste verdieping te bereiken. 
De woonkamer met open keuken, is samen goed voor ca. 43 m² aan gezellige leefruimte. 
De open keuken, het pronkstuk van deze woning, is voorzien van een moderne opstelling en beschikt over onder andere een vaatwasser, combi-oven, koelkast en een Bora inductie kookplaat met geïntegreerde afzuiging. De marmer look accenten geven de keuken een luxe en eigentijdse uitstraling. Door de lichtkoepel is er veel licht, ideaal voor tijdens het koken.
De openslaande tuindeuren verbinden de keuken op natuurlijke wijze met de diepe achtertuin.
De toiletruimte beschikt over een hangcloset en een fonteintje.
De complete badkamer is voorzien van toilet, ligbad, inloopdouche en wastafelmeubel.
De slaapkamer, of kantoorruimte is aan de achterkant van de woning gelegen.

De bijkeuken is voorzien van witgoed aansluitingen en tevens bevindt zich hier de mechanische afzuiging waar toilet, badkamer en slaapkamer op de begane grond is aangesloten.

Eerste verdieping

Op de eerste verdieping bevinden zich nog twee comfortabele slaapkamers en een tweede badkamer.
Deze badkamer is voorzien van wastafel en douche.
Via de vaste trap is de tweede verdieping te bereiken.

Tweede verdieping

De vierde slaapkamer op de tweede verdieping biedt volop mogelijkheden als rustige werkplek, tienerkamer of hobbyruimte.
De cv-ketel (Remeha) is hier netjes in een kast weggewerkt.

Tuin

Buiten geniet je van een fijne, diepe achtertuin met volop ruimte om te ontspannen, te spelen of lange zomeravonden door te brengen. Dankzij de breedte aan de achterzijde en de ligging op het noordwesten is er altijd wel een zonnig of juist schaduwrijk plekje te vinden. Parkeren doe je eenvoudig op eigen terrein, op de oprit naast de woning.

Bijzonderheden

+ Grotendeels voorzien van Rolluiken en screens
+ Levensloopbestendig wonen, badkamer en slaapkamer op de begane grond
+ Totaal 4 slaapkamers en twee badkamers 
+ Slaapkamer op de begane grond is goed te gebruiken als werkplek.
+ Begane grond grotendeels voorzien van kunststof kozijnen.
+ Luxe moderne keuken uit 2022
+ Remeha HR Combiketel vernieuwd in 2021
+ Platdak in 2025 vernieuwd

Kenmerken