Beschrijving
WONINGZOEKERS OPGELET!
Deze charmante uitgebouwde twee-onder-één-kapwoning mét riante garage/schuur en multifunctionele ruimte is nu te koop!
De woning is volledig gemoderniseerd en verkeert in goede staat – klussen is niet nodig. Wat u kunt verwachten:
+ Een riante oprit, geschikt voor meerdere voertuigen.
+ Een moderne keuken en stijlvolle badkamer
+ Vernieuwde multifunctionele ruimte / werkplek / gastenverblijf met toilet en aansluitingen voor badkamer en keuken.
+ Een grote achtertuin
+ Riante garage / schuur voor opslag of beroep aan huis.
+ Energielabel A
+ Goed onderhouden en direct te betrekken
Bent u benieuwd en wilt u de sfeer zelf komen proeven? Maak dan snel een afspraak en laat je verrassen.
Ligging en omgeving:
Deze woning is gelegen aan de Kaaistraat in het sfeervolle en pittoreske dorp Sint Willebrord, in het hart van Noord-Brabant. Het dorp biedt een ruim aanbod aan voorzieningen, waardoor u voor zowel dagelijkse als minder alledaagse boodschappen nooit ver van huis hoeft.
In Sint Willebrord vindt u diverse supermarkten, bakkers, slagers, delicatessenzaken en andere gezellige winkels. Daarnaast zijn er volop horecagelegenheden, van restaurants tot lunchrooms en cafés. Ook op het gebied van onderwijs is er voldoende keuze: er zijn twee basisscholen en meerdere kinderopvanglocaties.
De ligging is bovendien zeer gunstig: de Rijksweg A58 bevindt zich op slechts 5 minuten rijden, waardoor u snel in steden als Roosendaal en Breda bent. Ook omliggende dorpen zoals Sprundel, Etten-Leur en Hoeven zijn binnen 10 minuten met de auto bereikbaar.
Tot slot beschikt Sint Willebrord over een bushalte met een goede verbinding naar de treinstations van Roosendaal en Breda. Ideaal voor forenzen of voor wie graag met het openbaar vervoer reist.
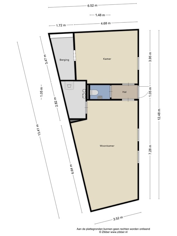
Indeling
U betreedt de woning via de hal, waar u toegang heeft tot de meterkast (3 fase, hoofdschakelaar, 1 chint. 6 x aardlek, 16 groepen, 1 kookgroep en diverse utp-aansluitingen) en de ruime woonkamer.
De lichte en sfeervolle woonkamer (samen met de keuken ca. 51 m²) is voorzien van vloerverwarming en airco. Dankzij de vele raampartijen is er volop natuurlijk daglicht. Door de speelse indeling met diverse hoeken is deze ruimte praktisch en flexibel in te richten. Via openslaande deuren stapt u zo de achtertuin in – ideaal voor binnen-buitenleven!
De woonkamer staat in open verbinding met de moderne keuken, die is uitgevoerd in een praktische L-opstelling. De keuken is in december 2023 geplaatst en voorzien van diverse onder- en bovenkasten, laden, een koelkast, grote vriezer, combioven, een inductie kookplaat met geïntegreerde afzuiging, vaatwasser, spoelbak en een kunststof werkblad.
Tevens is de keuken voorzien van airco.
Aansluitend vindt u de bijkeuken, waar zich de aansluitingen voor wasapparatuur bevinden. Ook biedt deze ruimte toegang tot:
+ De volledig betegelde toiletruimte met wandcloset en fontein
+ Een vaste kast met daarin de c.v.-combiketel (Vaillant 2021)
+ De trapopgang naar de eerste verdieping
+ Een loopdeur naar de achtertuin
Eerste verdieping
Door de opbouw heeft deze verdieping de beschikking over een ruime overloop met toegang tot drie slaapkamers, een ruime badkamer én een riante inloopkast.
De hoofdslaapkamer bevindt zich aan de voorzijde en is royaal van formaat: ca. 3.56 x 5.11 m, deze slaapkamer beschikt over een airco en een praktische inloopkast van ca. 2.10 x 2.46 m – ideaal voor al uw kleding en accessoires
Aan de achterzijde bevinden zich nog twee slaapkamers, van ca. 4.22 x 2.38 m en 2.58 x 2.38 m. De grootste slaapkamer is ook voorzien van airco.
De badkamer is modern en volledig betegeld (ca. 3.99 x 2.38 m) en voorzien van alle gemakken:
+ Een inloopdouche met zowel regen- als handdouche en een thermostaatkraan
+ Een wandcloset
+ Een wastafel met meubel
Deze verdieping is dankzij de opbouw bijzonder ruim en praktisch ingedeeld, wat bijdraagt aan het comfortabele woongevoel.
Tuin
De woning beschikt over zowel een voor- als achtertuin. De achtertuin is gelegen op het oosten en dankzij de royale diepte profiteert u hier de hele dag van zowel zon als schaduw – en bovendien van veel privacy.
De tuin is praktisch en onderhoudsvriendelijk ingericht en voorzien van:
+ Bestrating en kunstgras
+ Diverse groene borders
+ Er zijn 2 buitenkranen, 1 in achtertuin en 1 in voortuin.
+ Een poort naar de voorzijde van de woning
Achter in de tuin bevindt zich een gastenverblijf / multifunctionele ruimte / tuinhuis. Deze ruimte is recent afgewerkt en beschikt over een woonkamer en slaapkamer, beiden v.v. airco, een toilet en aansluitingen voor keuken en badkamer. Ideaal voor de mensen die net even die extra ruimte nodig hebben voor ouders / kinderen of B&B. Mogelijkheden genoeg!
Tevens heeft deze ruimte 3 rookmelders en een eigen meterkast (1 hoofdschakelaar, 3x aardlek, 10 groepen, 1 kookgroep en diverse utp-aansluitingen)
Garage
De woning beschikt daarnaast over een ruime, geïsoleerde garage van ca. 9.80 x 4.86 m. Deze is voorzien van:
+ Een elektrische sectionaaldeur
+ Een loopdeur naar de achtertuin
+ Een wastafel
+ Een perfecte ruimte voor de ondernemer, voor de auto, klusprojecten of extra opslag.
+ Eigen meterkast v.v. hoofdschakelaar, 1 chint, 2 groepen, 1 krachtgroep 380, utp-aansluitingen en uitbreiding mogelijk voor eventuele zonnepanelen.
Bijzonderheden
+ riant perceel met ruime oprit voor parkeren op eigen terrein.
+ Royale geïsoleerde garage met sectionaaldeur
+ Airco woning (woonkamer, keuken en slaapkamer)
+ Begane grond v.v. vloerverwarming
+ Moderne keuken
+ Moderne badkamer en sanitair
+ Recent afgewerkte multifunctionele ruimte / werkplek / gastenverblijf met airco in slaapkamer en woonkamer, tevens voorzien van toilet en voorbereidingen badkamer en keuken.
+ Volledig geïsoleerd
+ Elektrische installatie vernieuwd
+ Cv ketel Vaillant 2021
+ Rookmelders in woning.
+ Woning is grotendeels voorzien van rolluiken.
Plattegronden
172481416_1545881_kaais_begane_grond_first_design_20250509_0ee0ae.jpg
172481416_1545881_kaais_bijgebouw_first_design_20250509_77dcd3.jpg
172481416_1545881_kaais_eerste_verdiepi_first_design_20250509_b8481e.jpg
172481416_1545881_kaais_garage_first_design_20250509_8e7a50.jpg